奈良県生駒市軽井沢町6-47
近鉄難波・奈良線「生駒」駅 徒歩22分
近鉄難波・奈良線「生駒」駅 車7分(1.4km)






※現況と相違ある場合、現況を優先します。
奈良県生駒市軽井沢町6-47
近鉄難波・奈良線「生駒」駅 徒歩22分
近鉄難波・奈良線「生駒」駅 車7分(1.4km)
| 建物現況 | 空家 |
|---|---|
| 建物構造 | 木造 |
| 階建 | 2階建 |
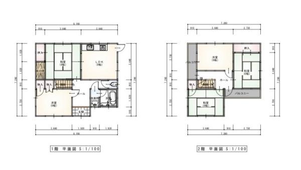
| 間取り | 5LDK(1F:LDK8帖 1F:洋6帖 1F:和8帖 2F:洋6帖 2F:和6帖 2F:和6帖) |
| 築年月 | 1978年7月 |
| 建物面積 | 登記:94.42m2(28.56坪) |
| 土地面積 | 公簿:151.43m2(45.8坪) |
| 地目/地勢 | 宅地/傾斜地 |
| 建ぺい率/容積率 | 40%/60% |
| 土地権利 | 所有権 |
| 地役権 | 無 |
| 借地期間 | - |
| 権利金/保証金 | -/- |
| 都市計画 | 市街化区域 |
| 用途地域 | 第一種低層住居専用地域 |
| 駐車場 | 有(1台可) |
|---|---|
| 接道状況 | 一方(西:公道 幅員4m 接面8m) |
| セットバック | 無 |
| 私道有無 | 無 |
| 国土法届出 | 不要 |
| 手付金保証 | - |
| フラット利用 | - |
| 学校区 |
生駒小学校(2074m) 緑ヶ丘中学校(792m) |
| 法令に基づく その他制限 |
風致地区 |
| 備考 | - |
| 取引態様 | 仲介 |
| 引渡時期 | 相談 |
| 問い合せ番号 | 060001-33969 |
| 物件更新日 | 2026年3月16日 |
2026年3月30日
コンビニ セブンイレブン生駒元町1丁目店(1205m)

ドラッグストア スギ薬局生駒店(1686m)

役所 生駒市役所(1392m)

幼稚園・保育園 いこま保育園(1371m)

幼稚園・保育園 生駒市立生駒幼稚園(742m)

中学校 生駒市立緑ケ丘中学校(778m)

駅 生駒駅(近鉄奈良線)(1326m)

お問い合わせ番号をお伝えいただくとスムーズです。
この物件のお問い合わせ番号は【060001-33969】です。
物件価格にて、消費税がかかる場合は税込み価格を表示しています。